You are here

5 BR
5 BA
16 Guests

Location

Close to TownLaurel Oaks Community

Search Availability

Description

You must be 23 years old. Name on reservation must match name on the credit card. Identity verification required. Booking party must be present at check-in. Third-party app required for check-in.

Bear Tracts is providing free admissions to some of the most popular attractions the area has to offer. Details below.

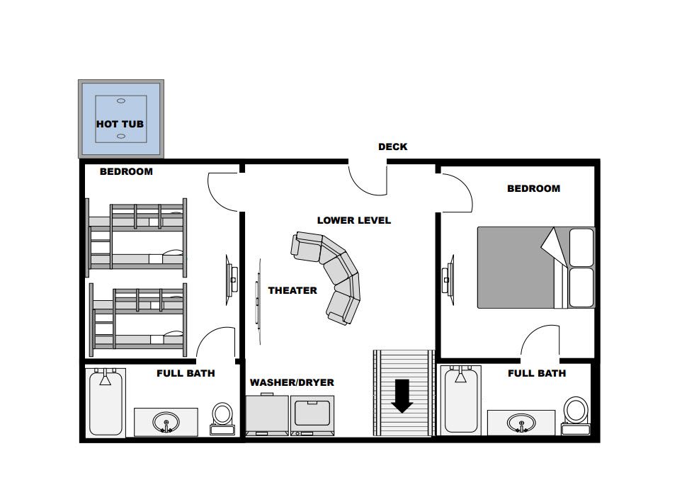
This lodge was rebuilt after the 2016 wildfires and sleeps sixteen people. It is perfectly located within 5 minutes of downtown Gatlinburg and offers spectacular views of the Smoky Mountains from its three oversized decks.

Enjoy five bedrooms, each of which has its own full bathroom. 4 king suites! Two on the top floor, one on the main floor, and one on the lower level. All with a luxurious self cleaning Jacuzzi tub . After a day of hiking, biking, or skiing, a long, lazy soak will feel like heaven! The fifth bedroom has a 2 queen over queen bunk beds which is perfect for the kids or a family shared room. All the bedrooms come with a 50in HTDV and premium cable.

The Main floor family room leaves nothing to be desired. Large windows and doors opening onto the deck let in plenty of sunshine. In winter the corner fireplace makes the room even more delightful. There’s plenty of room to sprawl out on the leather couches to watch a movie on the 50” HDTV, or you can curl up in the armchair with your tablet and take advantage of the free WiFi.

The dining area seats sixteen people. The table easily accommodates twelve, in comfortable chairs. Another six people can sidle up to the adjacent breakfast bar; the kids will especially love eating there “on their own” while the grown-ups dine at the table. The breakfast bar doubles as additional kitchen counter and storage space. The kitchen itself is fully equipped with stainless-steel appliances, a full accouterment of cookware, and plenty of tableware. In addition you can find an outdoor grill to fire up your favorite meats and veggies.

Upstairs, between the top floor’s two bedrooms, is a spacious game room. Challenge one another to a round of pool, play cards or a board game at the pub table, or you can play one of the arcade’s twenty games. Or you can stretch out on the leather couch to watch TV or indulge in a well-deserved nap.

The lower level has an attraction of its own: a media room with a large flat-screen TV and an especially sumptuous leather couch. So comfortable is the seating, you may want to kick back in there even when you’re not watching a movie or the big game. The media room also has a wet bar complete with mini fridge and popcorn maker. If you run out of snacks during your double feature, you won’t have to head upstairs to the kitchen.

Spanning the width of Damron’s Dream, the three decks are furnished with numerous rockers so that everyone can enjoy the sight of falcons soaring over the Smoky Mountains, the singing of wrens and warblers, and the crisp breeze. The lower deck has an especially wonderful spot for soaking up the surrounding beauty in a roomy hot tub.

Location: Walking distance to the Alamo Steakhouse, Little Pancake House, and Mad Dog's Creamery. 1.3 miles to downtown Gatlinburg, 6.5 miles to Pigeon Forge, and 2.6 miles to the Smoky Mountain National Park.

Towels and linens are provided. Stack-able washer and dryer on site.

Parking for 4 vehicles

Stay Longer, Get Even More Free Tickets We've partnered with Xplorie to get you even more free tickets and discounts!
You'll get up to $1072 in Free Tickets per day through Xplorie, every day you stay with us.
The longer you stay, the more free tickets you get!
Stay 3 nights, you'll get $3,216 in free tickets.
Stay 5 nights, you'll get $5,360 in free tickets.

Attractions include:
• Xtreme Racing
• Soaky Mountain
• Dollywood Theme Park & Water Park
• Anakeesta
• Mama’s Farmhouse
• Ziplining
• White Water Rafting
• Putt Putt
• Trampoline
• Alcatraz Museum
• Mountain Wheel
• WonderWorks
• Mountain Coaster
• Riding Stable
• Paula Deen’s Adventure Park & Show
• Beyond The Lens
• Country Tonite

Amenities

Entertainment

  • Cable TV
  • DVD Player
  • Games
  • Arcade Games
  • Pool Table

KITCHEN

  • Coffee Maker
  • Dishes & Utensils
  • Dishwasher
  • Kitchen
  • Microwave
  • Oven
  • Refrigerator
  • Stove
  • Toaster
  • Dining Table

Outdoor

  • Deck
  • Patio
  • Balcony
  • Charcoal Grill
  • Hot Tub

Health and Safety

  • Enhanced cleaning practices
  • Clean with disinfectant
  • No-contact check-in and check-out
  • High touch surfaces cleaned with disinfectant
  • Towels and bedding washed in water that's at least 60sC/140sF

Beds

  • King 4
  • Sofa Bed 1
  • Bunk 2

GENERAL

  • Central Air
  • Clothes Dryer
  • Fireplace
  • Hair Dryer
  • Heating
  • Internet/Wifi
  • Iron & Board
  • Linens Provided
  • Living Room
  • Parking
  • Towels Provided
  • Washing Machine
  • Wifi
  • Free Wifi

Scenery

  • Mountain View

Availability

Key
#Night Available#Night Unavailable#Arrive Only#Depart Only
November 2025
SuMoTuWeThFrSa
 1
2
3
4
5
6
7
8
9
10
11
12
13
14
15
16
17
18
19
20
21
22
23
24
25
26
27
28
29
30
 
December 2025
SuMoTuWeThFrSa
 1
2
3
4
5
6
7
8
9
10
11
12
13
14
15
16
17
18
19
20
21
22
23
24
25
26
27
28
29
30
31
 
January 2026
SuMoTuWeThFrSa
 1
2
3
4
5
6
7
8
9
10
11
12
13
14
15
16
17
18
19
20
21
22
23
24
25
26
27
28
29
30
31
February 2026
SuMoTuWeThFrSa
1
2
3
4
5
6
7
8
9
10
11
12
13
14
15
16
17
18
19
20
21
22
23
24
25
26
27
28
March 2026
SuMoTuWeThFrSa
1
2
3
4
5
6
7
8
9
10
11
12
13
14
15
16
17
18
19
20
21
22
23
24
25
26
27
28
29
30
31
 
April 2026
SuMoTuWeThFrSa
 1
2
3
4
5
6
7
8
9
10
11
12
13
14
15
16
17
18
19
20
21
22
23
24
25
26
27
28
29
30
 
May 2026
SuMoTuWeThFrSa
 1
2
3
4
5
6
7
8
9
10
11
12
13
14
15
16
17
18
19
20
21
22
23
24
25
26
27
28
29
30
31
 
June 2026
SuMoTuWeThFrSa
 1
2
3
4
5
6
7
8
9
10
11
12
13
14
15
16
17
18
19
20
21
22
23
24
25
26
27
28
29
30
 
July 2026
SuMoTuWeThFrSa
 1
2
3
4
5
6
7
8
9
10
11
12
13
14
15
16
17
18
19
20
21
22
23
24
25
26
27
28
29
30
31
 
August 2026
SuMoTuWeThFrSa
 1
2
3
4
5
6
7
8
9
10
11
12
13
14
15
16
17
18
19
20
21
22
23
24
25
26
27
28
29
30
31
 
September 2026
SuMoTuWeThFrSa
 1
2
3
4
5
6
7
8
9
10
11
12
13
14
15
16
17
18
19
20
21
22
23
24
25
26
27
28
29
30
 
October 2026
SuMoTuWeThFrSa
 1
2
3
4
5
6
7
8
9
10
11
12
13
14
15
16
17
18
19
20
21
22
23
24
25
26
27
28
29
30
31
November 2026
SuMoTuWeThFrSa
1
2
3
4
5
6
7
8
9
10
11
12
13
14
15
16
17
18
19
20
21
22
23
24
25
26
27
28
29
30
 
December 2026
SuMoTuWeThFrSa
 1
2
3
4
5
6
7
8
9
10
11
12
13
14
15
16
17
18
19
20
21
22
23
24
25
26
27
28
29
30
31
 
January 2027
SuMoTuWeThFrSa
 1
2
3
4
5
6
7
8
9
10
11
12
13
14
15
16
17
18
19
20
21
22
23
24
25
26
27
28
29
30
31
 
February 2027
SuMoTuWeThFrSa
 1
2
3
4
5
6
7
8
9
10
11
12
13
14
15
16
17
18
19
20
21
22
23
24
25
26
27
28
 

Location

Reviews

Leave a Review

Fun week with siblings and spouses

Reviewed on 2025-11-01 by , Warrens, WI US
Overall
5
Property condition
5
Location
5
Cleanliness
5
Services from rental manager
5
It was awesome for four older couples. Plenty of room and space to visit, cook and relax. Enjoyed en-suite bathrooms with each bedroom. Very clean. We would rent again if we return to area.

Been visiting mountains for 10 years now.

Reviewed on 2025-10-21 by Sherra C. , SANTA CLAUS, IN United States
Overall
5
Services from rental manager
5
Cleanliness
5
Location
5
Property condition
5
We love this house stayed here many times over the years.

Damron’s Dream

Reviewed on 2025-10-17 by Sheila W. , Ashland City, TN United States
Overall
5
Services from rental manager
5
Cleanliness
4
Location
5
Property condition
5
Our family absolutely loved this cabin! It’s very close to the strip in Gatlinburg, everything we needed was provided, and overall was pretty clean. We saw a bear almost everyday while we stayed, which was pretty exciting. The only thing is the floors were pretty dirty, if you walked around barefoot or with white socks on your feet turned black. Definitely recommend bringing house shoes.

Family Vacation

Reviewed on 2025-08-21 by Elizabeth S. , Alderson, WV US
Overall
5
Services from rental manager
5
Cleanliness
5
Location
5
Property condition
5
House was clean and beautiful. I have a very large family and this house was perfect for us. Loved having the full size washer and dryer. Would definitely recommend this property.

family vacation!

Reviewed on 2025-06-24 by , West Palm beach, FL US
Overall
5
Services from rental manager
5
Cleanliness
5
Location
5
Property condition
5
cabin was more than what we expected, big for our family of 12. View was amazing, clean and comfortable. Will definitely stay again and recommend it to my friends.

Gorgeous, Roomy Cabin!

Reviewed on 2025-06-06 by , Richmond, IN US
Overall
5
Services from rental manager
5
Cleanliness
5
Location
5
Property condition
5
This was a wonderful place. We have been to Gatlinburg many times, and we have never been in a place this clean! Gorgeous cabin, bedrooms all had their own bathrooms. Not a bug or spider to be found. All amenities were there as reported. It was super close to places to eat and the best donuts I have ever eaten! Downtown was only a 5 minute drive. While the view wasn't ONLY mountains and trees (you can see and hear the main road, etc) it was still a good view and the decks were very spacious with tons of rockers and a swing we all loved! Overall, a great place!

May 2025 Stay

Reviewed on 2025-06-01 by Shannon Diamond-Knott , Robbinsville
Overall
5
Experience Rating
5
Property Rating
5
Value Rating
5

We had a great stay. Thank you for having us!

Great Cabin, minutes from downtown Gatlinburg

Reviewed on 2025-04-29 by Rachel F. , Mineral, VA US
Overall
5
Services from rental manager
5
Cleanliness
5
Location
5
Property condition
5
The cabin was exactly as described and shown in pictures. It was immaculately clean and well-stocked with everything we needed. We loved the location.

Beautiful Home Close to Everything!

Reviewed on 2025-03-19 by Misty W. , Pleasanton, TX US
Overall
5
Services from rental manager
5
Cleanliness
5
Location
5
Property condition
5
We were a family of 9 and stayed at Damron’s Dream for part of our spring break. This was our first time visiting Tennessee and we absolutely loved it! The house and amenities were perfect for our 5 teens that traveled with us and the bedrooms were comfortable. We wish that we had stayed the whole week at Damron’s Dream instead of splitting with another location. Will absolutely return in the future!

Great Cabin

Reviewed on 2025-02-18 by , Cedartown, GA US
Overall
5
Services from rental manager
5
Cleanliness
5
Location
5
Property condition
5
We had a wonderful time at Damron’s Dream! We had plenty of room and lots of fun activities when the grandchildren were inside. The weather was cold and rainy a day or so, and they loved the game room with pool table and arcade games! The movie room and hot tub were also big hits. Thank you for a great family trip!

Great Cabin

Reviewed on 2025-02-17 by Gay Popham , Cedartown, GA United States
Overall
5
We took our 2 sons and their families. We had 8 grandchildren with us who loved the whirlpool, arcade games, movie room, and pool table. The view was nice and it was just a few minutes from downtown Gatlinburg. We all had a fabulous time even when it was cold and rainy!!!

November 2024 Stay

Reviewed on 2024-11-18 by Nereyda Fuentes , Durham
Overall
5
Experience Rating
5
Property Rating
5
Value Rating
5

Me and my family loved this place its our second time

Great Cabin in a great location!

Reviewed on 2024-08-12 by Jason E. , Rural Hall, NC US
Overall
5
Services from rental manager
5
Cleanliness
5
Location
5
Property condition
5
The cabin is beutiful and just as described. 4 king suites and 1 suite with bunk beds. Also 3 gathering areas so that not everyone is on top of each other. The kitchen is expansive and allows much room to prepare and eat togetehr. The only suggestion is for a second dishwasher!

Great cabin value - thumbs up!!!

Reviewed on 2024-07-21 by PATRICK T. , Shelby, NC US
Overall
5
Services from rental manager
5
Cleanliness
5
Location
5
Property condition
5
Everything was as described. 5 stars! The unit was very clean, easy to get to, especially if coming from Asheville. The cabin is just minutes from Gatlinburg, plus 20+ easy minutes access to Dollywood. The location was great. The view was good; however, it seems likely that all cabins in the Gatlinburg area you will see other cabins in your view, which is fine. And,it was much a better view than many. Heed the bear warnings! We saw several bears around the cabin, but just don't bother them and they won't bother you. The young kids really had a thrill seeing the bears - a good life experience.

Smoky Mountain Vacay

Reviewed on 2024-06-23 by , Camp Hill, PA US
Overall
4
Services from rental manager
5
Cleanliness
4
Location
4
Property condition
4
Layout of this property was perfect for our extended family vacation. Location provided easy access to attractions while far enough away for peace and quiet.

Great stay for Vacation

Reviewed on 2024-05-28 by Hitesh G. , N/A, CO United States
Overall
5
Services from rental manager
5
Cleanliness
5
Location
4
Property condition
5
Great location overall for Smoky vacation and near to Gatlinberg and all other location.

Bear Tracts review

Reviewed on 2024-05-19 by Bonita W. , Henderson, TN Unknown
Overall
5
Services from rental manager
5
Cleanliness
4
Location
5
Property condition
5
Great cabin. Lots of room. Everything worked, beds were comfortable. Great experience for the family. Saw a bear almost every night. Would reccomend for a great time.

Great Place, great view, greatest value for money

Reviewed on 2024-04-02 by , Brampton, ON Canada
Overall
5
Services from rental manager
5
Cleanliness
5
Location
5
Property condition
5
We were a huge group of 8 adults and 8 kids travelled to smokies for Spring Break and this property never felt crowded. Weather was unexpectedly nice and this property made our trip a whole lot enjoyable. Kids loved hot tub and games and home theatre (sound system was amazing!). Best part was proximity to food city for groceries (if you are travelling with toddlers, that will be a boon).

March 2024 Stay

Reviewed on 2024-03-28 by Joshua Crabtree , Waverly
Overall
4
Experience Rating
4
Property Rating
5
Value Rating
4

This cabin was wonderful. 3 different families enjoyed Damrons Dream for a spring break getaway. Each couple had their own suite like bedroom/bathroom. Plenty of space for the kids and adults to spread out.

Only issue we had is the amount of trash receptacles vs the amount of people this cabin holds doesnt equate. If youre here for more than a few days youll need to call for trash pickup. Would still stay here again.

A weekend away

Reviewed on 2024-02-21 by , Paragould, AR United States
Overall
5
Services from rental manager
5
Cleanliness
5
Location
5
Property condition
5
Damron's Dream was a dream location for my group. There was enough space to spread out. It was far enough away from the strip that it was quiet, yet close enough to be there in 5 minutes.

Perfect vacation

Reviewed on 2024-01-30 by , Quincy, FL US
Overall
5
Services from rental manager
5
Cleanliness
5
Location
5
Property condition
5
This was our first time visiting Gatlinburg, TN. This home was the perfect place to stay. It was spacious enough for our group. The location was perfect. It is close to town. I would definitely recommend staying at this location.

50th bday stay

Reviewed on 2024-01-08 by Roger H. , Greenville, SC US
Overall
5
Services from rental manager
5
Cleanliness
4
Location
5
Property condition
3
My family loved the house and it was in a great location to downtown . Only thing we think the house would need is new couch’s upstairs and a trash can upstairs while playing pool . Other than that everyone loved the house .

Damron’s Dream was amazing!

Reviewed on 2023-12-28 by Maureen H. , Willis, TX US
Overall
5
Services from rental manager
5
Cleanliness
5
Location
5
Property condition
5
The cabin was a perfect size for all 10 of us. The kids loved that they had their own floor downstairs. They also spent a lot of time playing pool and arcade games. The six adults were very comfortable in their king size beds and we all enjoyed just sitting around and visiting. The main floor of the house was decorated for Christmas which we loved!

Amazing Mountain Experience

Reviewed on 2023-12-19 by Kari P. , Peachtree City, GA United States
Overall
5
Services from rental manager
5
Cleanliness
5
Location
5
Property condition
5
Our family had a wonderful stay at Damron’s Dream! We were able to celebrate Christmas together and the cabin was perfect for a large group. We absolutely love that all of the bedrooms were equipped with king beds and their own bedrooms. It was perfect! The kitchen was fully stocked with utensils, pots/pans. We could not have asked for anything more! Such a beautiful and cozy cabin!!!

Amazing Mountain Experience

Reviewed on 2023-12-19 by David P. , Peachtree City, GA US
Overall
5
Services from rental manager
5
Cleanliness
5
Location
5
Property condition
5
Our family had a wonderful stay at Damron’s Dream! We were able to celebrate Christmas together and the cabin was perfect for a large group. We absolutely love that all of the bedrooms were equipped with king beds and their own bedrooms. It was perfect! The kitchen was fully stocked with utensils, pots/pans. We could not have asked for anything more! Such a beautiful and cozy cabin!!!

Beautiful cabin!

Reviewed on 2023-11-27 by Vickie S. , Browns Summit, NC US
Overall
5
Services from rental manager
5
Cleanliness
5
Location
5
Property condition
5
Cabin was perfect for our family of 12. All bedrooms had private baths which was a plus. Cabin perfectly stocked with everything you could possibly need.

My new annual getaway

Reviewed on 2023-10-26 by Billy S. , Dearborn Heights, MI US
Overall
5
Services from rental manager
5
Cleanliness
5
Location
5
Property condition
5
This cabin was amazing. The description was spot on. The property was clean and the host provided direct contact info if there was a question on what and how to do things. The location was perfect. The cabin is close enough to enjoy Gatlinburg but not on the main strip. I will caution you that this is a mountain resort. The hill going up to the cabin is steep and we had three bear sightings just outside of our cabin. Leave the bears alone and they will leave you alone.

Smoky Mountains

Reviewed on 2023-08-07 by Nancy H. , Wisconsin Rapids, WI US
Overall
5
Services from rental manager
5
Cleanliness
5
Location
3
Property condition
5
Fantastic!

Beautiful Views

Reviewed on 2023-08-02 by Candi D. , Mesa, AZ United States
Overall
5
Services from rental manager
5
Cleanliness
5
Location
5
Property condition
5
We loved staying at Damron’s Dream. It was our first family reunion, and it was perfect. There was plenty of space. Every thing was clean. We had every thing we needed in the kitchen. The porches were a favorite with a swing, rocking chairs, a big table and gorgeous views. We would stay again, and hope we get the chance to.

Fabulous House, Wonderful Vacation!

Reviewed on 2023-07-29 by Carol S. , Sanford, NC US
Overall
5
Services from rental manager
5
Cleanliness
5
Location
5
Property condition
5
Perfect house for a large family with lots of kids. The queen over queen bunk beds were the best! Beat Tracts was very responsive to every need. Game room and hot tub were a lifesaver after long days of events! Enjoyed relaxing on the huge balconies in the evenings. Would definitely be repeat renters!

Family trip

Reviewed on 2023-07-11 by Victoria O. , Blenheim, SC US
Overall
5
Services from rental manager
5
Cleanliness
4
Location
5
Property condition
5
We loved every second of our stay and plan on booking again really soon.

Great family cabin

Reviewed on 2023-04-03 by , Plainfield, IN US
Overall
5
Services from rental manager
5
Cleanliness
5
Location
5
Property condition
5
The cabin was very roomy and clean. We had everything we needed to cook, play, and relax. I would recommend this cabin!

Great location

Reviewed on 2023-01-31 by Austin F. , Hahira, GA Unknown
Overall
4
Services from rental manager
5
Cleanliness
4
Location
5
Property condition
5
Great location in Gatlinburg. Down town to cabin in 5 minutes. Well appointed. Not a fan of the decor and strange art in the walls but is a minir detail. Cant say enough abkut the rental company “Bear Tracks” emails, text, and info in the app made check in/a breeze.

Damon's Dream

Reviewed on 2023-01-20 by , Glasgow, KY United States
Overall
5
Services from rental manager
5
Cleanliness
4
Location
3
Property condition
5
There were 15 in our party and we had plenty of room. The kitchen was overly stocked with everything we needed. Beds were comfortable and plenty of bathrooms. Parking was a little tight for 5 vehicles. Not much of a view.

Fall Break from School

Reviewed on 2022-10-28 by Sherra C. , SANTA CLAUS, IN United States
Overall
5
Services from rental manager
5
Cleanliness
5
Location
5
Property condition
5
We loved this cabin lots of space to move around and many things to do while staying here without going out.

October 2022 Stay

Reviewed on 2022-10-23 by James Adcock , Knox
Overall
5
Experience Rating
5
Property Rating
5
Value Rating
5

Our church group has a great time in this cabin. It allowed each of our participants to sleep well and the cabin allowed us to move around freely.

Wonderful Cabin

Reviewed on 2022-10-12 by , Batavia, OH US
Overall
5
Services from rental manager
5
Cleanliness
5
Location
5
Property condition
5
This was an exceptional place to stay with a large family. Absolutely beautiful! Very clean and had everything we needed for a long weekend stay. We will definitely consider staying here again.

June 2022 Stay

Reviewed on 2022-07-04 by Louis White , Frankenmuth
Overall
5
Experience Rating
5
Property Rating
5
Value Rating
5

We held our 55th Anniversary gathering at the cabin. It met all needs. It was Clean and had just the right amenities for our group. When we needed help Matt and April could not have been more responsive and prompt.
We highly recommend renting through Bear Tracts Vacation Cabins.

Gatlinburg Stay

Reviewed on 2022-06-23 by , Mound City, MO US
Overall
5
Services from rental manager
5
Cleanliness
5
Location
5
Property condition
5
Beautiful cabin. Had a small toilet problem and it was taken care of immediately. Big enough for all 14 of us and the kids had a blast with the game room and porches.

Quick get-away for 14

Reviewed on 2022-06-11 by Rhonda W. , Eaton, OH US
Overall
5
Services from rental manager
5
Cleanliness
5
Location
5
Property condition
5
Our experience was great. The communication and cabin were both better than expected.

�� ������

Reviewed on 2022-06-08 by , London, OH US
Overall
5
Services from rental manager
5
Cleanliness
5
Location
5
Property condition
5
We loved the cabin. We enjoyed the view. Also the hot tub. Over all.....our cabin was amazing.

Mom's dream vacation

Reviewed on 2022-05-04 by Valerie G. , Lake Village, IN US
Overall
5
Services from rental manager
5
Cleanliness
5
Location
5
Property condition
5
My family have been talking about taking a vacation together for years. Planning a date and location was the challenge. We all discussed Gatlinburg because we loved going there when they we children. Now all grown up ... some with children of their own... we started planning. We had previously stayed in a log cabin and loved the experience. I began to search and loved the pictures and size of Damrons dream. The transaction was clearly explained and management easy to call and discuss with. Upon arrival everything was as expected and cabin was clean and well stocked with conveniences for making meals and our 3 day stay. Our stay and vacation together was this mom's dream and the cabin made memories for all involved! Thank you for making it easy and pleasant.

Wonderful vacation home

Reviewed on 2022-03-19 by Tom G. , Natchez, MS US
Overall
5
Services from rental manager
5
Cleanliness
5
Location
5
Property condition
5
Perfect place to stay in Gatlinburg. All we expected and more. Will definitely book again with this company.

Family Vacation given as a Christmas gift

Reviewed on 2022-02-26 by , Sumter, SC US
Overall
5
Services from rental manager
5
Cleanliness
5
Location
5
Property condition
5
We loved the location of the cabin. Convenient to everything. Kitchen was great! When you have a group of 10, you need a big living/eating area. Gaming area was enjoyed a lot too! The staff was also very helpful. Very courteous and always willing to assist.

Family Vacation given as a Christmas gift

Reviewed on 2022-02-26 by C. J. W. , Sumter, SC United States
Overall
5
Services from rental manager
5
Cleanliness
5
Location
5
Property condition
5
We loved the location of the cabin. Convenient to everything. Kitchen was great! When you have a group of 10, you need a big living/eating area. Gaming area was enjoyed a lot too! The staff was also very helpful. Very courteous and always willing to assist.

Family Vacation given as a Christmas gift

Reviewed on 2022-02-26 by Clarence W. , Sumter, SC United States
Overall
5
Services from rental manager
5
Cleanliness
5
Location
5
Property condition
5
We loved the location of the cabin. Convenient to everything. Kitchen was great! When you have a group of 10, you need a big living/eating area. Gaming area was enjoyed a lot too! The staff was also very helpful. Very courteous and always willing to assist.

Couples Weekend

Reviewed on 2022-02-24 by , Calhoun, GA US
Overall
4
Services from rental manager
5
Cleanliness
3
Location
4
Property condition
5
The cabin is great for 4 couples. We had five couples so one couple had to stay in the bunk room. The bunk room does have queen beds but they are still bunk beds. The living room area is great for a large group. The living and kitchen area is why we chose this cabin. The location was close to downtown which was a plus. The cabin does sit on a steep hill but has a great view. We did have an issue with the floors and counter tops not being cleaned but cleaning co. returned to take care of the same evening we checked in. We would stay again upon return to the area.

Manager's Response

Hey Gail, Housekeeping can have an off day at their job like anyone can. We are happy we were able to get out and resolve your issues quickly.

Couples Weekend

Reviewed on 2022-02-24 by Gail F. , Calhoun, GA US
Overall
4
Services from rental manager
5
Cleanliness
3
Location
4
Property condition
5
The cabin is great for 4 couples. We had five couples so one couple had to stay in the bunk room. The bunk room does have queen beds but they are still bunk beds. The living room area is great for a large group. The living and kitchen area is why we chose this cabin. The location was close to downtown which was a plus. The cabin does sit on a steep hill but has a great view. We did have an issue with the floors and counter tops not being cleaned but cleaning co. returned to take care of the same evening we checked in. We would stay again upon return to the area.

Manager's Response

Hey Gail, Housekeeping can have an off day at their job like anyone can. We are happy we were able to get out and resolve your issues quickly.

Excellent as expected

Reviewed on 2022-02-02 by Leanny G. , Orlando, FL United States
Overall
5
Services from rental manager
5
Cleanliness
5
Location
5
Property condition
5
This cabin is exactly the same one we rented last year for our family vacation. The cabin itself is a dream, the structure and setting is super cozy , super clean and extremely comfortable it has anything you need in the kitchen even what you think they might not have. Keep in mind thou if you are a hispanic family there might be things you want to bring from home since we ate used to other kitchen gadget like an espresso machine instead of american coffee and a pressure cooker if you plan on cooking . I plan on making this cabin our yearly family vacation tradition . Location is super convenient, the views are like taken from a movie . The staff super helpful and willing to accommodate you. Overall this is amazing. Go reserve yours!

Excellent as expected

Reviewed on 2022-02-02 by Leanny G. , Dunnellon , FL United States
Overall
5
Services from rental manager
5
Cleanliness
5
Location
5
Property condition
5
This cabin is exactly the same one we rented last year for our family vacation. The cabin itself is a dream, the structure and setting is super cozy , super clean and extremely comfortable it has anything you need in the kitchen even what you think they might not have. Keep in mind thou if you are a hispanic family there might be things you want to bring from home since we ate used to other kitchen gadget like an espresso machine instead of american coffee and a pressure cooker if you plan on cooking . I plan on making this cabin our yearly family vacation tradition . Location is super convenient, the views are like taken from a movie . The staff super helpful and willing to accommodate you. Overall this is amazing. Go reserve yours!

Nice cabin

Reviewed on 2022-01-10 by , Moore, SC US
Overall
5
Services from rental manager
5
Cleanliness
5
Location
5
Property condition
5
Very nice and clean cabin, close to Galtinburg . Full equipment, comfortable couches and beds . It was a wonderful time here !

Excelente

Reviewed on 2021-12-28 by Rudy J. , Ladson, SC US
Overall
5
Services from rental manager
5
Cleanliness
5
Location
5
Property condition
5
Excelente, good location, fast answer, recommend

Thanksgiving 2021

Reviewed on 2021-11-29 by , Santa Rosa Beach, FL US
Overall
5
Services from rental manager
5
Cleanliness
5
Location
4
Property condition
4
The cabin was most accommodating, clean and well stocked for our family stay during Thanksgiving week. The location was good, just outside of the congested downtown area but still convenient to the entrance to Great Smoky Mountain National Park and other attractions. The upper level game room was a fun gathering spot for family activities after dinner each night.

Nice cabin so close to town and grocery store!

Reviewed on 2021-10-26 by Dawn M. , Wooster, OH United States
Overall
4
Services from rental manager
5
Cleanliness
3
Location
5
Property condition
4
The location of this cabin was perfect! However, we wish we were told about the construction going on in 2 places that were definitely within hearing and eyesight distance. We were so close to Gatlinburg and had a grocery store also a very short drive away! I would have also liked if there were instructions for how to use and turn on the TV’s. Overall, this was a beautiful cabin in a perfect location.

Nice House!

Reviewed on 2021-08-30 by Constantino T. , Plantation, FL US
Overall
4
Services from rental manager
5
Cleanliness
5
Location
2
Property condition
4
The house was perfect! The location and property was not so good. The photos of the views were deceiving. The photos showed mostly mountain views but the actual views were mostly other houses and buildings. No land for outdoor activities. But the house was excellent.

Family vacation 2021

Reviewed on 2021-08-22 by Kathy D. , St. Charles, MO Unknown
Overall
5
Services from rental manager
5
Cleanliness
5
Location
5
Property condition
5
the beds were comfortable & the house had something for everybody* the small problems we had were taking care of quickly ( can't ask for more than that)

Wonderful, Clean Cabin

Reviewed on 2021-08-05 by , Vancleave , MS US
Overall
5
Services from rental manager
5
Cleanliness
5
Location
5
Property condition
5
This cabin was perfect for our family! Everyone had their own space and all of the shared spaces were large enough to accommodate our large family. Not only was the kitchen well stocked, there was a large selection of games and movies...also the pool table was a hit with the young and old. The location of the cabin was perfect, only a short drive down the road to the main strip of Gatlinburg. Even though we were close to town, we were surrounded by wildlife during our stay that the kids really enjoyed. We saw a bear from our cabin on two different days which we all thought was so exciting! We could not have had a better stay, we will definitely book again the next time we come to Gatlinburg! It was just perfect.

Family Gatlinburg Vacation

Reviewed on 2021-07-24 by Laure Jean J. , BRECKSVILLE, OH US
Overall
5
Services from rental manager
5
Cleanliness
5
Location
5
Property condition
5
The cabin was beautiful. One of the king mattresses needed to be replaced but otherwise it was perfect. There are gorgeous views from all three balconies. Plenty of parking. Close to town but not among all the congestion you find there. Once we figured out how to bypass the traffic in Gatlinburg, we were fine. Fine art galleries nearby. Lots for all of us to do. If you get bored, it's your own fault!

July 2021 Stay

Reviewed on 2021-07-06 by William Sapp , Nashville
Overall
5
Experience Rating
5
Property Rating
5
Value Rating
5

Excellent cabin, enjoyed our stay

June 2021 Stay

Reviewed on 2021-07-04 by Laure Jean Jirousek , BRECKSVILLE
Overall
5
Experience Rating
5
Property Rating
5
Value Rating
5

There were 15 of us and we had plenty of room. Great location - 3 minutes to the end of the Gatlinburg strip. The cabin was immaculate. Took a couple days to get used to the steep drive!

Celebrating our 70th birthdays with family

Reviewed on 2021-06-28 by Stephen P. , Fort Myers, FL US
Overall
5
Services from rental manager
5
Cleanliness
5
Location
5
Property condition
5
We had a wonderful time at this cabin. We had 10 people from our family stay here. We had plenty of room for everyone. We enjoyed our morning coffee on one of the decks and our grown children made good use of the hot tub at night! The kitchen was large, plenty of room to prepare food for the family, and the dining room table seated all 10 of us. Every bedroom had its own bath with a shower which was great. We even saw a bear walking on the road during our morning coffee! Some of the cabins.near us had tricky steep parking, particularly if you would have a larger vehicle or had multiple cars in your party. This should be noted in the description of the property before people commit to rent. We liked being close to town, but did wish at times we were a little more remote without close neighbors.

Nice cabin

Reviewed on 2021-06-16 by Rita Murphy , Athens, Alabama US
Overall
5
Very nice cabin. We had a great time in Gatlinburg. Very nice to have a bathroom in each room. The art work in the walls are very odd, my 3 UTI grandson was scared to walk past some off the pictures. We had a group of 13, living area small on main floor. It’s a squeeze to move around the large dining table.

Beautiful cabin

Reviewed on 2021-06-13 by Jennifer J. , McComb , MS US
Overall
5
Services from rental manager
5
Cleanliness
5
Location
5
Property condition
5
The cabin was beautiful there’s plenty of space for a large family and the location is close to downtown.

Great Cabin in the Smokeys

Reviewed on 2021-04-17 by , Naperville, IL US
Overall
4
Services from rental manager
5
Cleanliness
5
Location
4
Property condition
5
Overall our stay was great! The house was beautiful - plenty of room, clean, nice amenities, comfortable beds and amazing decks. The only somewhat disappointing thing personally was the proximity to the one of the main roads - it was still quiet at night and great locale - close to the national park entrance, downtown Gatlinburg and grocery store however not super remote. The property manager was excellent and I would recommend this place to others in the future.

April 2021 Stay

Reviewed on 2021-04-07 by Kenneth Bell , Concord
Overall
5
Experience Rating
5
Property Rating
5
Value Rating
5

Great cabin! Wonderful time me with our kids and grandkids. Thanks

Perfect Mountain Getaway

Reviewed on 2021-04-07 by Kenneth B. , Concord, NC US
Overall
5
Services from rental manager
5
Cleanliness
5
Location
5
Property condition
5
The cabin is very clean, furnished as advertised, and provided a wonderful experience for my family. It is conveniently located and the WiFi, hot tub, and cable TV all worked well. I highly recommend it. Great communication from the owners.

Wonderful Family Vacation

Reviewed on 2021-03-19 by , Batesville, IN US
Overall
5
Services from rental manager
5
Cleanliness
5
Location
5
Property condition
5
We had the best time and the cabin was beyond our expectations. Beautiful location, quiet, peaceful, updated, clean, perfect!

The best ever!

Reviewed on 2021-02-26 by , MIAMI, FL US
Overall
5
Services from rental manager
5
Cleanliness
5
Location
5
Property condition
5
This cabin has to be the best cabin in Gatlinburg, TN. We were a total of 16 people and I was afraid that it was going to be too small because usually photos make a place seem bigger than it actually is, but i was wrong! This place was super spacious, squeaky clean, and filled with everything you need for a wonderful stay! Aside from the cabin itself being perfection... the location of this cabin is unbelievably perfect. Only about a 2 min drive from the busy town of Gatlinburg and all its attractions. About 7 min away from the grocery store. All in all, it was amazing and everything we could ask for and more. 3 patios with great views, location on point, super clean and spacious, washer dryer, jacuzzi, etc. It's also not so high up the mountain that you have to drive with lots of curves, but you still get great views. From the main street to the cabin its about a minute drive. Another great thing is the communication with Matt & April, they answer really fast if anything happens and answer any questions you may have upon arrival. Recommend 100%.

Damron's Dream Review By The Mays

Reviewed on 2021-02-09 by Qunietta M. , N/A, CO United States
Overall
4
Services from rental manager
5
Cleanliness
4
Location
3
Property condition
4
Amazing Time With Friends 7 family For My Birthday.

Gatlinburg Stay

Reviewed on 2021-01-28 by Joseph Richard Moran I. , Gallatin, TN US
Overall
5
Services from rental manager
5
Cleanliness
5
Location
5
Property condition
5
We took a multi family trip and stayed in Damron’s Dream. I’ve stayed in a bunch of different cabins in the area and this was hands down the nicest one I’ve been in. It’s super clean and updated! The 3 floor layout is perfect, kids go on 1st floor with the bunks and adults can have fun on the 3rd floor with the pool table. The location was awesome, only 5 minute drive to downtown Gatlinburg. Will definitely be back!

November 2020 Stay

Reviewed on 2020-11-28 by Duanne Galmiche , Chesterfield
Overall
5
Experience Rating
5
Property Rating
5
Value Rating
5

We had a great time here. The grandkids loved the pool table and old school video games. Many memories made over were the Thanksgiving holiday.

Awesome Large Upscale Cabin

Reviewed on 2020-10-28 by Teresa B. , Plymouth , IN US
Overall
5
Services from rental manager
5
Cleanliness
5
Location
5
Property condition
5
The cabin and amenities exceeded our expectations. Very clean and it appeared all furnishings were fairly new. Large porches/decks on all 3 floors with hot tub, rocking chairs and a large table.
The owners were amazing. The first morning we only found one skillet for breakfast. I called the owner and he brought us a 2 large brand new skillets.
The next morning we located several skillets in a cabinet under the island in the kitchen that we didn’t see the first day.
We our fuzzy travelers and usually find faults. Not this time, everything was great. We loved our 4 night stay.

October 2020 Stay

Reviewed on 2020-10-19 by Mary jane Crotty , Covington
Overall
5
Experience Rating
5
Property Rating
5
Value Rating
5

It was wonder. We had some trouble with fireplace coming on the last day but didnt want to worry with it. Im sure if we had called someone would have been sent out.

Damron's Dream

Reviewed on 2020-10-18 by , Virginia Beach, VA United States
Overall
4
Services from rental manager
4
Cleanliness
5
Location
4
Property condition
5
We met with family from different states in Gatlinburg. Some of us had never been there before, so we didn't know what to expect. The cabin was very nice and furnished very well. It was very clean upon arrival. We did have a couple of maintenance issues, but they were quickly addressed. Although the cabin is large it isn't nearly as large as it looks in the pictures.

May 29th - 31st family weekend wedding

Reviewed on 2020-10-07 by Teresa Woosley , Smithfield
Overall
5
Experience Rating
5
Property Rating
5
Value Rating
5

Thank u Matt and April for a wonderful weekend in your beautiful clean cabin. It had everything we needed and plenty of room for our party of 10. We had a blast the weather was beautiful and the location was perfect and views were awesome. Will definitely book again with Matt and April in one of their beautiful cabins whenever we come to Gatlinburg. Thanks again. 5 stars !!!!!

December 2019 Stay

Reviewed on 2020-10-07 by Mike Tedder , Wake Forest
Overall
5
Experience Rating
5
Property Rating
5
Value Rating
5

We loved the cabin, plenty of space for 7 adults and 5 children to both play and relax. Thanks for stocking the house with everything that was needed. The best part is the place was super clean, number 1 on our most wanted list. Thanks again!

July 2020 Stay

Reviewed on 2020-10-07 by LaJaysha Echoles-Gaston , Houston
Overall
5
Experience Rating
5
Property Rating
5
Value Rating
5

We enjoyed our stay at the cabin and would love to stay here again. Everything was perfect.

Fantastic

Reviewed on 2020-07-21 by Yong R. , N/A, CO United States
Overall
5
Services from rental manager
5
Cleanliness
5
Location
5
Property condition
5
It’s a fantastic place. We spent wonderful five days.

Damron’s Dream Vacation

Reviewed on 2020-07-14 by , Chesapeake, VA United States
Overall
5
Services from rental manager
5
Cleanliness
4
Location
5
Property condition
5
Beautiful location, the house was very spacious for our family of 10 and was well stocked with all the appliances you needed. The pool table and arcade was a hit with the family, although the pool table was not in a good position for taking shots. Overall, the house was neat and clean, accept the floors could use a good mopping. Our socks were filthy after walking around.

Smoky Mountain Vacation

Reviewed on 2020-05-27 by Rodney B. , Indianapolis, IN US
Overall
5
Services from rental manager
5
Cleanliness
5
Location
5
Property condition
5
We had a family of 16 and the cabin was perfect. Hike all day and jump in the hot tub to relax. Cabin is in a perfect location.

Great spot close to town

Reviewed on 2020-05-20 by Lawrence P. , Chattanooga, TN United States
Overall
4
Cleanliness
5
Location
4
Property condition
5
Great place. Plenty of space. Everything needed provided. Worth the stay.

90th birthday celebration

Reviewed on 2020-03-24 by Michael J. , Hendersonville , TN United States
Overall
5
Services from rental manager
5
Cleanliness
5
Location
5
Property condition
5
The experience was absolutely amazing. We had ages 3 to 90 and it was well equipped for all. Super clean, very close to attractions and Matt the owner was available at all times if we needed anything.

Great family getaway

Reviewed on 2020-01-08 by , Wake Forest , NC US
Overall
5
Services from rental manager
5
Cleanliness
5
Location
5
Property condition
5
The house had everything we needed, close to everything and it was super clean and well maintained.

Amazing Home!!!

Reviewed on 2019-12-11 by Amanda W. , Lynn Haven, FL US
Overall
5
Services from rental manager
5
Cleanliness
5
Location
5
Property condition
5
This home was perfect for multiple families! It is very spacious and clean!!! It had everything we needed to enjoy our stay including a wine opener. Tastefully decorated and very comfortable beds!!!

Girls trip

Reviewed on 2019-10-02 by Deborah Z. , Independence, KY Unknown
Overall
5
Services from rental manager
5
Cleanliness
5
Location
5
Property condition
5
What a beautiful cabin! We loved our stay here. Had everything we needed and more. Kitchen was extremely well stocked with beautiful dishes, and mugs. We had 14 women on this trip and we had everything we welded and more. Clean and beautiful! Thanks so much! I would highly recommend this place! Didn’t even have to check in an office when we got there which was nice. We were given a code and we went straight to the cabin. Couldn’t have been easier.
×